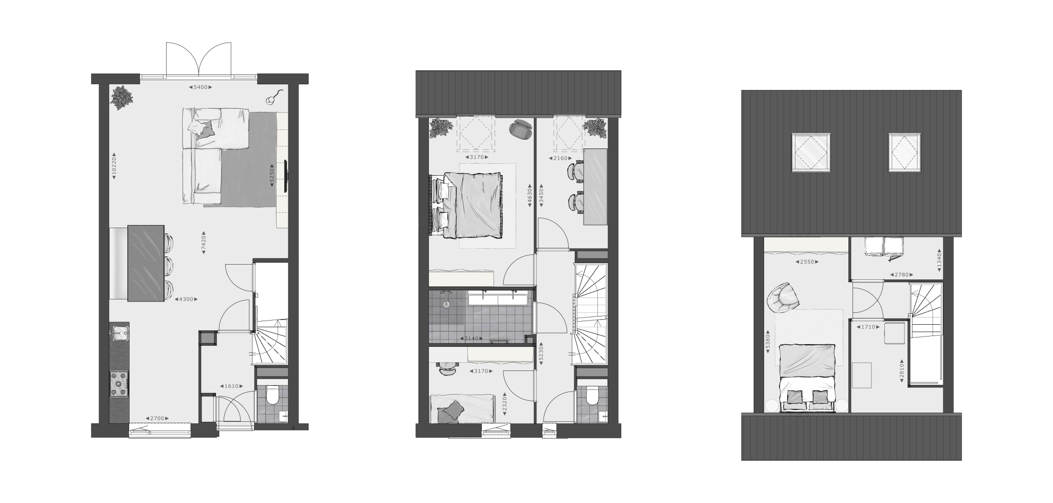
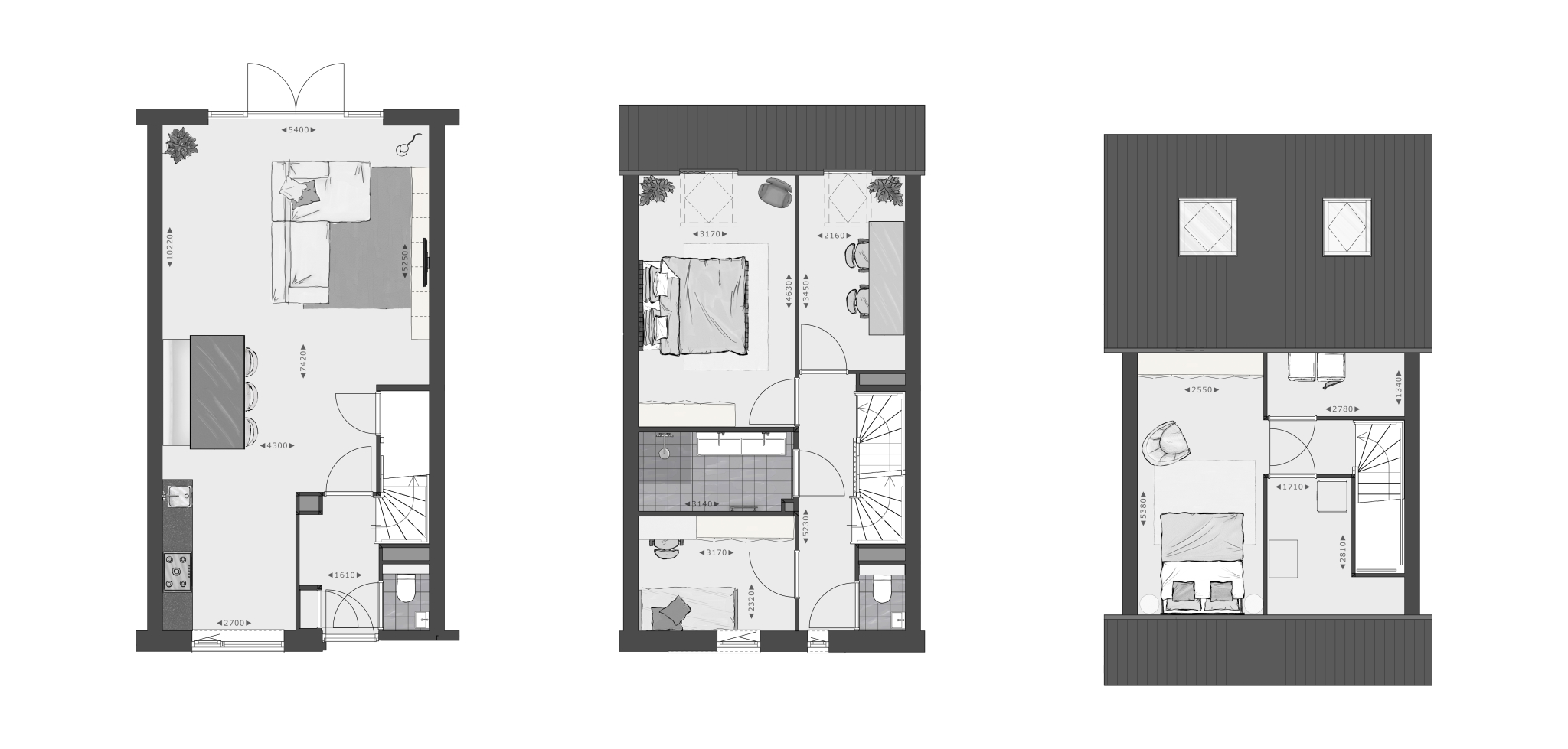
Deze hoekwoning met zij-entree wordt uitgevoerd in de geel genuanceerde gevel kleur en heeft een tuin op het Noord - Oosten. De woning wordt verkocht met een keuken en sanitair en tegelwerk in de sanitaire ruimten. Dit is dan ook bij de vrij op naam prijs inbegrepen.
Strikt noodzakelijke cookies
Deze cookies zijn nodig om de functionaliteit van de website mogelijk te maken en worden automatisch ingeschakeld wanneer u de website bezoekt. Het gaat hier om cookies die helpen bij het uitzoeken van een woning, en die helpen bij beveiligingsproblemen en het voldoen aan de regelgeving.
Prestatiecookies
Deze cookies verzamelen informatie over hoe u de website gebruikt, bijvoorbeeld welke pagina's u het meest bezoekt of als u een foutmelding krijgt. De informatie die door deze cookies wordt verzameld, is geaggregeerd en daarom anoniem. We gebruiken deze informatie om de werking van de website te verbeteren.
Functionele cookies
Met deze cookies kan de website de keuzes die u maakt onthouden en geoptimaliseerde functies aanbieden. De informatie die deze cookies verzamelen, is geanonimiseerd en houdt uw browseractiviteit op andere websites niet bij.
Advertentiecookies
Deze cookies worden gebruikt om advertenties weer te geven die relevanter zijn voor u en uw interesses. Ze worden met onze toestemming geplaatst door externe leveranciers en de verzamelde informatie kan worden gedeeld met andere organisaties, zoals uitgevers en adverteerders.
















